冶金非標閥
雙氣缸液動插板閥

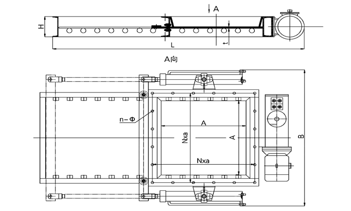
雙氣缸液動插板閥 500X500插板閥 800*800 700*700 1000*1000
該閘閥主要由框架、閘板、電液裝置等零件組成。工作時,活塞桿受液壓力作用帶動閘板作水平方向的往復運動,達到閘門的啟閉目的。
雙氣缸液動插板閥又稱手動刀型閘閥,刀形閘閥它是一種閘板與閥座始終緊密接觸密封的閥門,其原理是閘板上開有一個通徑大小的圓口,通過閘板啟閉使得閘板上圓口跟通徑做 脫離和相吻合的動作。此氣動插板閥的優點在于閥體通徑無凹槽,介質不會卡阻堵塞,并且具有全通徑流通特性,其密封結構可以分軟密封、硬密封結構。
雙氣缸液動插板閥是具有精密構造,工藝性好,結構緊湊等特點,密封閥座為活動結構設計,有防磨損和自動補償功能,因而壽命長。在關閉和開啟過程中閥座跟閘板一直緊貼運動,使得閥門啟閉力穩定,并且具有切斷介質等特點。
雙氣缸液動插板閥結構緊湊、耐磨,泄漏量小,具有操作簡便、動作靈活、省力等特點,可以在高溫、高粉塵、強磁的環境下正常工作。普遍適用于建材、冶金、化工、電工等行業,作為各類除塵設備的灰斗卸料裝置及各種磨機、烘干機、料倉等設備的給卸料裝置,防止野風吹入。
雙氣缸液動插板閥主要由框架、閘板、絲桿、螺母等零件構成,用手轉動手輪使絲桿帶著絲桿螺母和閘板沿水平方向往復運動,達到閘門的啟閉目的。
是粉料、晶粒料、小顆粒料的流量輸送控制的主要設備。氣動插板閥廣泛適用于冶金、礦山、建材、糧食、化工等行業。該閘門配備電動、氣動、電液動推桿作為驅動裝置,是控制流量大小,切斷迅速設備。

- 上一篇: 泰勒閥
- 下一篇:沒有了!





